
HLC are our friendly in-house Mortgage team and are on-hand to help you successfully move house in the most cost-effective way.
They are a representative of the whole mortgage market, therefore can provide you with a full overview of the options available.
It’s free to check, so why not give it a try?
Development Opportunity with Granted Planning Permission - An exciting chance to acquire a prime plot of land, referred to as Plot 1, with full planning permission approved for the construction of a detached, five-bedroom home. Situated in the desirable semi-rural village of Stoke Prior, Bromsgrove, this opportunity offers excellent potential in a sought-after location, ideal for developers or self-build projects.
The property will benefit from off-street parking for several vehicles, and also access to a single garage that is shown on Plot 2 plan.
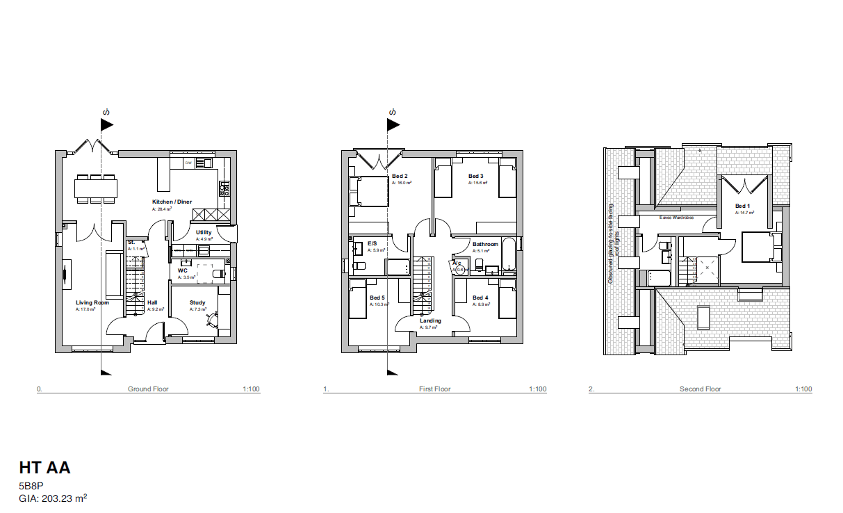
Upon entering, the hallway will feature convenient under-stairs storage and a guest WC. To the left, a door will open into a spacious lounge, which in turn leads through double doors into a generously sized kitchen/diner. French doors from the kitchen/diner will open onto the rear garden, creating an ideal space for indoor-outdoor living. Adjoining the kitchen will be a practical utility room with external doorway to the rear garden. Also located on the ground floor is an additional reception room, perfect for use as a home office, playroom, or gym.
Slightly different to the house known as Plot 2, Stairs from the hallway will rise to the first-floor landing, providing access to four double bedrooms. Bedroom two will benefit from its own en-suite shower room, while the remaining bedrooms will be served by a modern family bathroom.
The property will also enjoy a private rear garden, offering a great space for relaxing or entertaining.
Located in the charming village of Stoke Prior, Foley Gardens is a quiet and sought-after residential area offering a peaceful, semi-rural setting just outside Bromsgrove town centre. The area is well-regarded for its community feel, local amenities, and scenic countryside surroundings. Residents benefit from excellent transport links, with convenient access to the M5 and M42 motorways, making it ideal for commuters. Nearby, you'll find well-regarded schools, local pubs, parks, and canal-side walks, blending rural charm with everyday convenience.
Agent Note:
- Access and Services: Services will need to be laid through the access route, which is highlighted in blue on the site plan.
- Green Belt Land: The land to the rear of the site included in the sale, is within green belt designation and has historically be used as garden space.