
HLC are our friendly in-house Mortgage team and are on-hand to help you successfully move house in the most cost-effective way.
They are a representative of the whole mortgage market, therefore can provide you with a full overview of the options available.
It’s free to check, so why not give it a try?
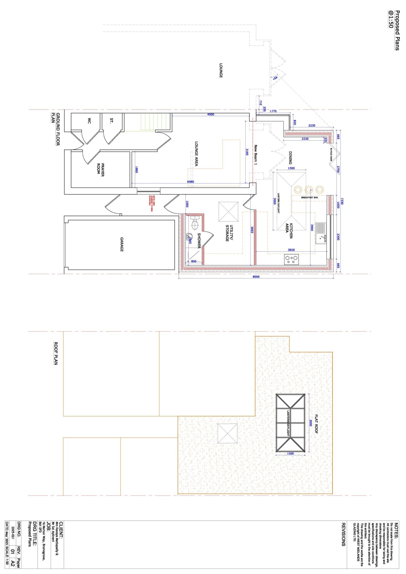
PLANNING PERMISSION APPROVED FOR SINGLE STOREY EXTENSION- A well-presented three-bedroom semi-detached home in sought-after Norton, Bromsgrove, offering 1,340 sq. ft of versatile space. Includes master with en-suite, family bathroom, two reception rooms, kitchen/diner, downstairs WC, garage, driveway, and low-maintenance garden. The property also benefits from granted planning permission for a single-storey wraparound extension, providing great potential for future development.
The property is approached via a driveway providing off-road parking for two vehicles, with access to the garage.
Once inside, the hallway with convenient downstairs wc and two storage cupboards, has doors providing access to the study room and kitchen/diner. The kitchen/diner is complete with integrated oven, hob and extractor, with space for additional freestanding appliances. This spacious room allows for a dining table/snug area (if required) with French doors to the rear garden.
Stairs to the first floor landing has doors to the lounge with front aspect, and master bedroom complete with its own en-suite shower room and fitted wardrobes.
Further stairs ascend to the second floor landing, with doors radiating off to double bedroom two with fitted wardrobes, double bedroom three with fitted wardrobes and storage cupboard, and family bathroom with shower over bathtub.
Outside, the property benefits from a low maintenance landscaped rear garden, with paved patio and garden shed. Steps lead up to artificial grass to walled and fenced boundaries.
Conveniently situated just a short distance from Bromsgrove town centre, the property is close to a wide range of local amenities including shops, restaurants, supermarkets, healthcare facilities, and a new leisure complex. Families will appreciate the excellent selection of nearby first, middle, and high schools, while commuters benefit from easy access to the M5 and M42 motorway networks.
Room Dimensions:
Kitchen/Diner - 6.1m x 3.93m (20'0" x 12'10") max
Study - 2.8m x 1.86m (9'2" x 6'1")
WC - 0.86m x 1.66m (2'9" x 5'5")
Garage - 5.37m x 2.97m (17'7" x 9'8")
Stairs To First Floor
Lounge - 3.93m x 3.39m (12'10" x 11'1") max
Master Bedroom - 3.93m x 3.03m (12'10" x 9'11")
En Suite - 1.51m x 2.15m (4'11" x 7'0")
Stairs To Second Floor
Bedroom 2 - 3.93m x 3.28m (12'10" x 10'9") max
Bedroom 3 - 3.93m x 3.1m (12'10" x 10'2")
Bathroom - 1.79m x 1.95m (5'10" x 6'4")
Hallway
Kitchen/Diner 20' 0" x 12' 11" (6.10m x 3.93m)
max
Study 9' 2" x 6' 1" (2.80m x 1.86m)
WC 2' 10" x 5' 5" (0.86m x 1.66m)
Garage 17' 7" x 9' 9" (5.37m x 2.97m)
Stairs to the First Floor Landing
Lounge 12' 11" x 11' 1" (3.93m x 3.39m)
Master Bedroom 12' 11" x 9' 11" (3.93m x 3.03m)
En-Suite 4' 11" x 7' 1" (1.51m x 2.15m)
Bedroom 2 12' 11" x 10' 9" (3.93m x 3.28m)
max
Bedroom 3 12' 11" x 10' 2" (3.93m x 3.10m)
Bathroom 5' 10" x 6' 5" (1.79m x 1.95m)
Disclaimer
These particulars are for guidance only and based on information approved by the seller. Accuracy cannot be guaranteed and details may contain errors or omissions. They do not form part of any contract. We are not surveyors or legal experts and cannot advise on condition, title, or other legal matters. Buyers should instruct their own professionals before making decisions. Photos are illustrative only and items shown are not necessarily included. Fixtures, fittings and appliances are not tested and may not be in working order. All measurements are approximate. No liability is accepted for loss from use of these details.
By law we must carry out ID and AML checks and review buyers’ financial circumstances before a property can be marked sold subject to contract. This due diligence is required by trading standards. Checks start once a provisional offer is agreed. The cost is £30 incl. VAT per property, payable in advance via our onboarding system.

